Secured Solutions ha sviluppato il progetto strutturale dell’Hotel sul Molo Sanità del Porto di Cagliari, che a breve verrà realizzato. Si tratta di un fabbricato a pianta rettangolare che si affaccia sul mare con i fronti longitudinali lunghi circa 76 metri e il fronte trasversale di testata, che ha uno sviluppo di circa 20 metri.
L’edificio si caratterizza per una progettazione innovativa, che unisce criteri di sicurezza strutturale, efficienza costruttiva ed estetica raffinata, ispirata all’ambiente marittimo circostante.

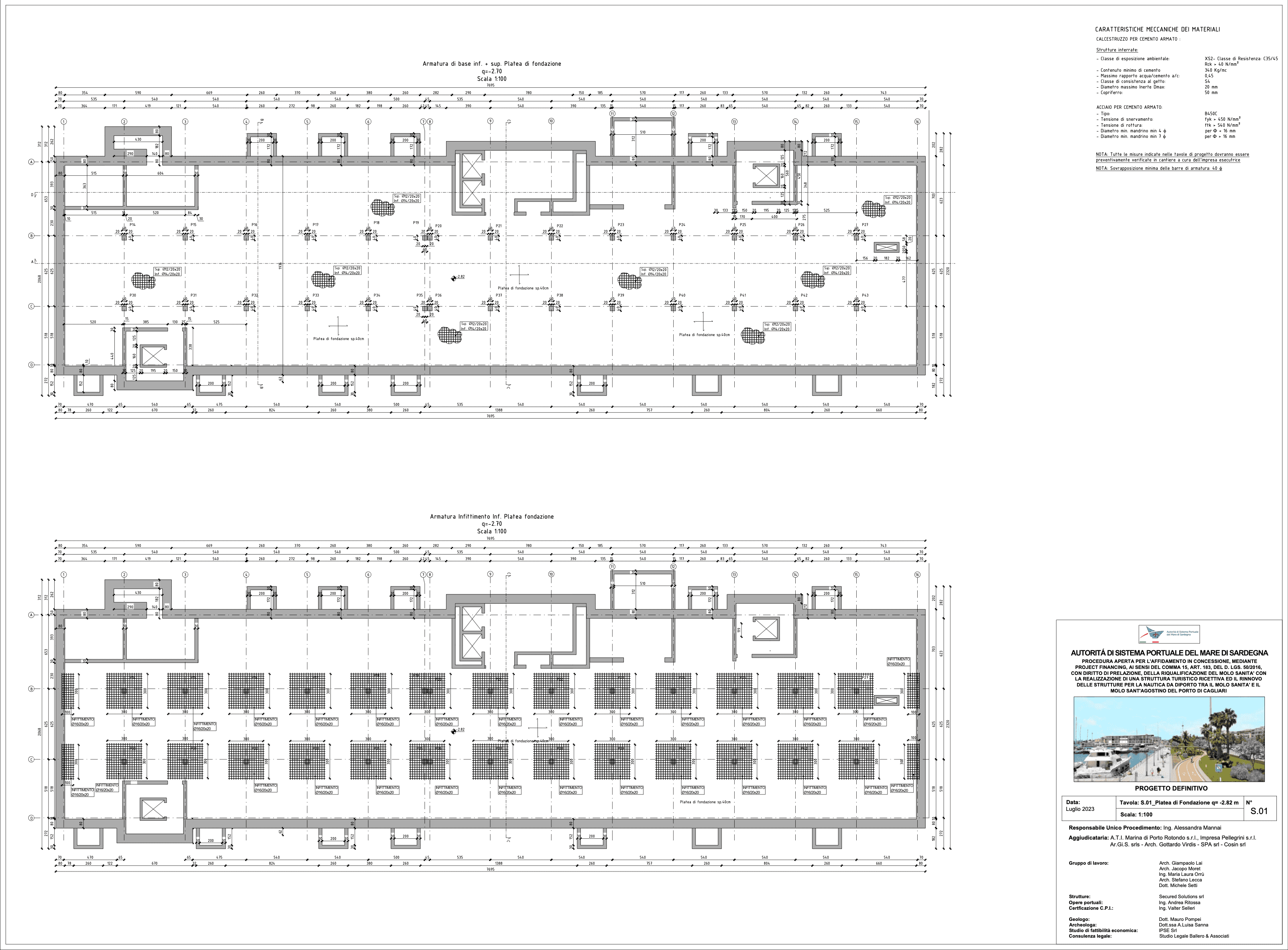
Fondazioni e consolidamento del terreno
Dal punto di vista strutturale, il progetto prevede la distribuzione del peso dei quattro piani fuori terra e del piano interrato su una platea di fondazione di 40 cm di spessore. Questa platea consente una ripartizione efficace dei carichi su un terreno opportunamente consolidato e rinforzato tramite la tecnica del Jet Grouting.
Tale metodo, sviluppato in Giappone negli anni ’60 e ora diffuso globalmente, consiste nell’iniezione ad altissima pressione (200-500 bar) di una miscela stabilizzante che, disgregando e mescolando il terreno in situ, ne migliora le caratteristiche meccaniche.
Nel caso specifico, le iniezioni saranno eseguite all’interno di colonne del diametro di 60 cm, con una profondità di 23 metri, disposte su un reticolo a maglie quadrate con interassi leggermente differenziati: 3,90 m in una direzione e 4,25 m nell’altra.
Questa configurazione garantisce una solida stabilità alla struttura, minimizzando i cedimenti differenziali e migliorando la resistenza del suolo alle sollecitazioni.

Struttura del piano interrato
Lungo l’intero perimetro del piano interrato saranno realizzati diaframmi in calcestruzzo armato dello spessore di 80 cm e con una profondità di infissione di circa 15 metri. Questi elementi strutturali avranno il compito di contrastare la spinta del terreno e dell’acqua, impedendo al contempo l’afflusso diretto di quest’ultima.
All’interno del piano interrato è prevista una struttura intelaiata in calcestruzzo armato, composta da pilastri con una sezione di 40 x 40 cm, dimensionati per garantire un’elevata capacità portante e assicurare l’efficienza statica dell’intero edificio.
Questa configurazione strutturale consente una distribuzione uniforme dei carichi, evitando eccessive concentrazioni di tensione che potrebbero compromettere la stabilità della costruzione.
Solai e copertura
I solai dei piani fuori terra, concepiti come piastre sottili in calcestruzzo armato, si estendono a sbalzo sul mare lungo tutto il perimetro dell’edificio, diventando un elemento chiave nel design della facciata e sottolineando la dimensione orizzontale della struttura.
Grazie a questa soluzione architettonica, l’edificio appare leggero e dinamico, come sospeso sull’acqua, enfatizzando il rapporto visivo tra la costruzione e il paesaggio marino.
Il solaio di copertura, a differenza degli altri, è stato progettato con uno spessore di 30 cm (10 cm in più rispetto agli altri piani) per sostenere carichi maggiori, compresi gli impianti tecnici e le attrezzature destinate agli spazi superiori.
La copertura è concepita per ospitare un’area panoramica e di relax, che contribuirà a valorizzare ulteriormente l’esperienza degli ospiti dell’hotel. A coronamento dell’edificio, la copertura a “Vela” è realizzata con una struttura spaziale a traliccio, rivestita con pannelli Aquapanel.
Questo particolare elemento architettonico conferisce leggerezza ed eleganza all’intero complesso, creando un profilo iconico e riconoscibile all’interno del panorama portuale di Cagliari. La scelta dei materiali per la copertura è stata guidata da criteri di durabilità e resistenza agli agenti atmosferici, garantendo una lunga vita utile alla struttura.












