Secured Solutions ha eseguito il progetto di rinforzo e recupero degli elementi strutturali dell’Ospedale Marino di Cagliari, originariamente denominato Colonia Dux. L’edificio, situato sulla spiaggia del Poetto, fu progettato da Ubaldo Badas nel 1937, ed è stato realizzato nel 1939 e rappresenta un’opera di rilievo nel patrimonio storico e architettonico della città. Il suo valore risiede nella capacità dell’autore di tradurre la struttura in un raffinato linguaggio architettonico.

Diagnostica strutturale: caratteristiche dell’intervento
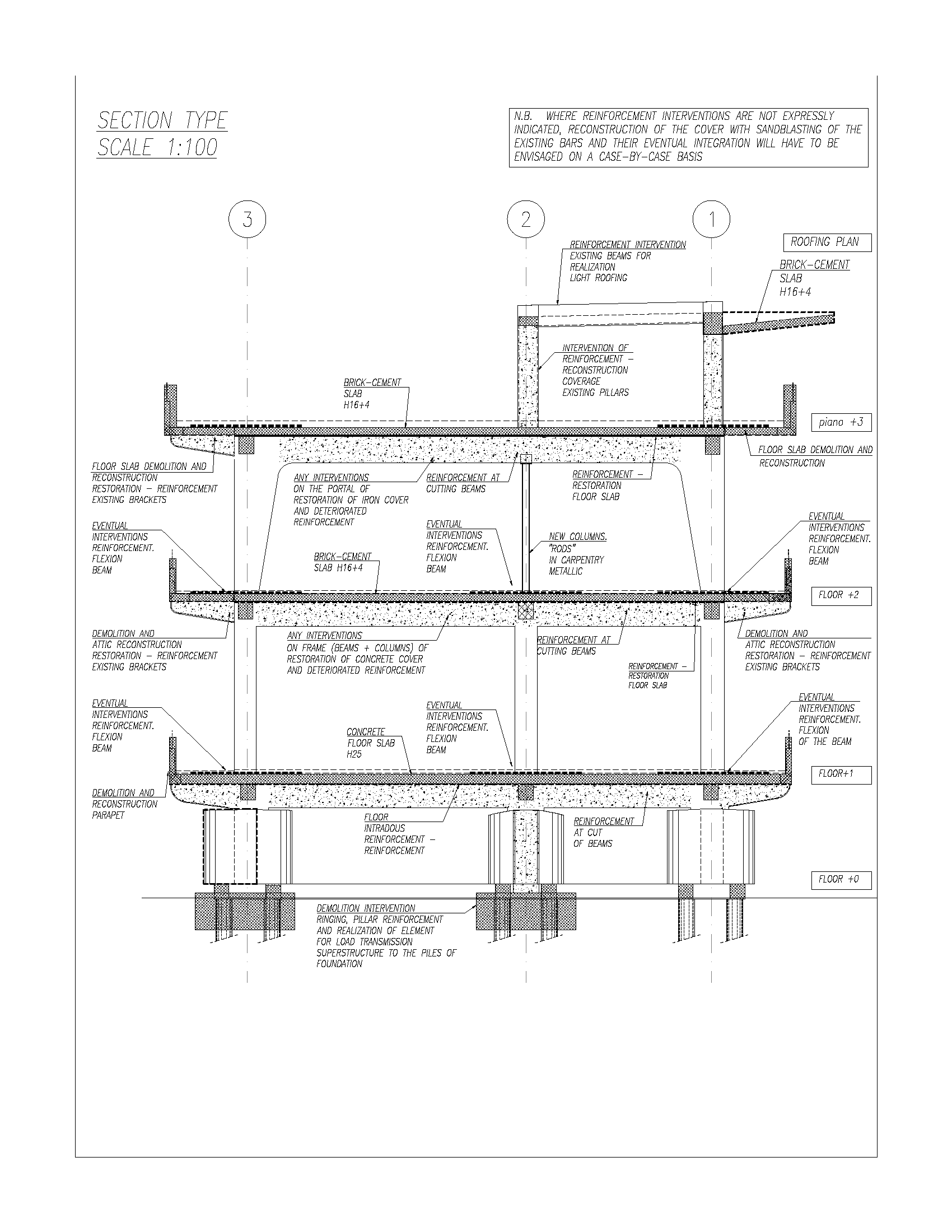
L’edificio presenta un impianto rettangolare caratterizzato da una leggera curvatura lungo i fronti longitudinali, rivolti rispettivamente verso il mare e lo stagno retrostante. In elevazione, questa disposizione si traduce in una sequenza ritmica di telai in calcestruzzo armato, distribuiti su tre livelli e collegati da travi paralleli ai fronti, conferendo al fabbricato una notevole rigidezza strutturale.
Il progressivo alleggerimento dei carichi procedendo dal basso verso l’alto definisce il profilo dei telai. La sezione trasversale del sistema strutturale mostra infatti come le due campate dei primi due livelli lascino spazio, al terzo piano, a un unico portale, il cui disegno ricalca il diagramma dei momenti.
La struttura si conclude con un pergolato in copertura, che non solo svolge una funzione climatica, ma contribuisce anche a contrastare gli sforzi agenti sulle mensole che sorreggono il ballatoio superiore.
Questo elemento, protetto da parapetti pieni, segue il profilo dei solai ed è sorretto da mensole incastrate ai telai, lasciate a vista: una scelta progettuale distintiva che enfatizza la linearità orizzontale dell’opera, conferendole un forte carattere espressivo.
L’ancoraggio al suolo è affidato a una serie di massicci plinti in calcestruzzo armato, anch’essi lasciati a vista, che trasmettono il carico dell’edificio ai pali di fondazione tramite un sistema a cerniera (due per ogni pilastro).

Interventi di consolidamento e recupero
L’esposizione all’aerosol marino ha accelerato il degrado del calcestruzzo armato, particolarmente evidente nei ballatoi, dove si registrano cedimenti diffusi e irreversibili, con distacchi localizzati di parti del solaio, parapetti e mensole.
Un’accurata analisi documentale e una campagna di indagini strutturali condotte dal nostro team hanno permesso di elaborare un piano di intervento rispettoso del progetto originario. Le indagini hanno incluso:
- Scavi e rilievi geometrici delle opere di fondazione e dei solai
- Prove magnetometriche
- Carotaggi e prove di compressione sugli elementi in calcestruzzo armato
- Prelievi e prove a trazione sulle barre d’armatura
Le informazioni raccolte hanno consentito una mappatura dettagliata dello stato di degrado della struttura.
I risultati delle verifiche strutturali sono stati positivi, anche rispetto alle azioni orizzontali previste dalla normativa vigente, confermando la qualità del progetto originario.
Piano degli interventi
Sulla base delle analisi strutturali condotte, il piano di recupero prevede:
- Rimozione degli intonaci e dei copriferri deteriorati
- Eliminazione e sostituzione dei ferri d’armatura ossidati
- Sabbiatura delle superfici interessate
- Applicazione di una malta cementizia anticorrosiva
- Ricostruzione dei copriferri e delle parti mancanti con malta fibrorinforzata a ritiro controllato
- Rinforzo e ricostruzione dei solai ammalorati
- Demolizione e ricostruzione dei solai dei ballatoi e dei parapetti in calcestruzzo armato, con soluzioni compatibili con quelle originali
- Realizzazione delle mensole dell’ultimo livello, mai completate
Conclusione
L’intervento realizzato da Secured Solutions non si limita al semplice consolidamento del manufatto, ma rappresenta un’opportunità per restituire a questo edificio storico la sua integrità e la sua funzionalità.
Attraverso un approccio rispettoso del progetto originario e l’utilizzo di tecniche avanzate di diagnostica strutturale e restauro, il recupero della Colonia Dux di Cagliari si configura come un esempio di valorizzazione del patrimonio architettonico, garantendo robustezza, estetica e durabilità nel tempo, preservando sempre l’identità.
Questo lavoro contribuisce alla salvaguardia di un’opera iconica, assicurando che possa continuare a raccontare la sua storia alle generazioni future.

























